PLANS DE BÂTIMENTS
Le géomètre-expert réalise différents types de plans:
- Plans d’intérieur
Les plans d’intérieur sont indispensables à la vente, la location, la mise en copropriété ou la gestion de locaux et de bâtiments.
- Plans d’architecture
Pour répondre aux besoins d’un maître d’œuvre ou d’un maître d’ouvrage, le géomètre-expert établit des plans d’intérieur détaillés, indispensables à la réhabilitation ou la restructuration partielle ou totale d’un immeuble. Il y consigne de nombreux détails : équipements fixes (éviers, appareils sanitaires, radiateurs, cheminées), sens d’ouverture des portes, affectation des locaux, colonnes d’alimentation et d’évacuation…
- Plans de façade
Le plan d’une façade positionne tous les éléments de celle-ci (ouvertures, faîtages, acrotères, bandeaux …) à prendre en compte, par exemple, lors d’un projet de restructuration d’un bâtiment.

-
- Figures de murs (héberges)
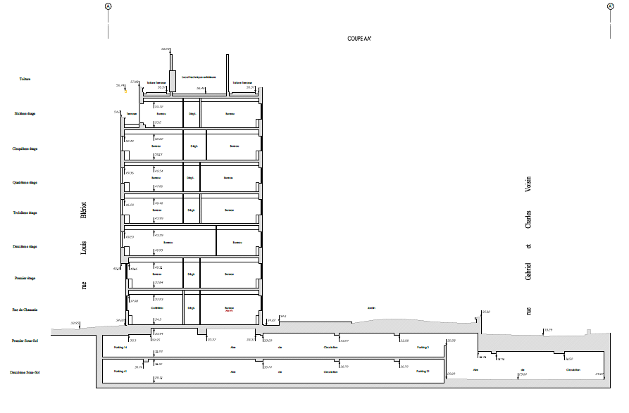
- Coupes : Ces plans sont nécessaires aux études de construction en limites séparatives ou à l’établissement d’un décompte de mitoyenneté
.
- Orthophotos-plans
